工地上的起吊机是如何“长高”的?
人气:
【字体:大 中 小】
发布时间:2005-02-05 17:07:39
>>>>>>>>提问我是初二的
休 闲居 编辑
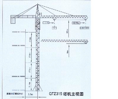
>>>>>>>>休闲养生网回答:请看这个塔吊的正面视图,在横梁和支架交叉也就是控制室的下面,是一个类似于套管的结构,连接在横梁上的尺寸大于支撑钢柱结构,也就是套在支撑柱上面的。一般在套管结构的下面,会有一圈平台,供工人站立。套管同支柱之间的固定,就在套管的下半部分,不但包括两个结构之间的连接,也包括了向上的支撑。也就是说,支柱的最顶端是不起支撑作用的。
支柱是由一节一节的钢构件组成的,中间由大铆钉连接,图中45度方向钢构件一正一反正好是一节。而套管结构通常有2.5节那么高,但其连接只在于下面的那一节上,所以套管可以向上升高到最上一节,而不会升去稳定。当套管升到最上面一节时,在套管底和支柱顶之间就有多于一节的空间,这时,就可以吊起新的一节,并把它放置到这个空间中。这新上来的一节,既不承重,也没有连接,把它固定在支柱的顶端即可。然后套管就可以继续上升一节。
其实这新的一节是在升高前就吊上去的,并且在套管结构底部那里,安装有两根滑轨,新的一节可以挂在上面,当空间足够时,一个工人就可以沿滑轨把它推进去。
套管及其连接的横梁也很重,都是钢架,它的升高是靠液压,电机驱动,上升是非常平稳的。目测液压活塞直径在10公分以上。液压机的底座可以沿支柱上下移动,其行程正好一节那么高。要装第二节时,就需要把液压机也向上移一节。
横吊臂的后端,一般有配重,这样,在不吊运建材时,整个吊臂是不平衡的,这样就让它升高是很不安全也不方便的。所以,在升高时,通常会吊着一些东西,一般就是吊着一节钢结构件,上升完毕,这一节也正好可以使用。
图片
/art_img/200707/04_0039321506.jpg
≡ 查看、发表评论 ≡